Tejas Plaza

2009 S Capital of Texas Hwy
Austin, TX 78746

AVAILABLE SF
SouthwestSUBMARKET
AustinMARKET
2008YEAR BUILT

Spaces Available (2)

Suite 100
For Sublease
10/7/2024
Suite 100
For Sublease
10/7/2024
5,560
Available SF
Office/Retail
Space Type
$24.00
PSF ANNUAL
NNN
Rate
$12.50
PSF ANNUAL
NNN
Opex

Also Available for Direct Lease!

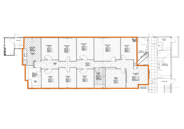
Can be combined with Suite 110 for 8,019 SF • High-end, Class A bank space with direct lobby exposure and a connected drive-through area • Layout consists of a reception area, 6 private offices, a phone room, a large conference room, a break room, and a private restroom • Bank Vault • Building and monument signage available

Suite 110
For Sublease
10/7/2024
Suite 110
For Sublease
10/7/2024
2,459
Available SF
Executive Office
Space Type
$24.00
PSF ANNUAL
NNN
Rate
$12.50
PSF ANNUAL
NNN
Opex

Also Available for Direct Lease!

Can be combined with Suite 100 for 8,019 SF • 100% hard wall office layout that consists of 9 private offices, a lobby area, and a break room • Ideal space for back-office executives, law firms, and financial services firms

Book A Tour

Reach out to one of our experts today!

Rick Lange
Krista Sakamuri
Rick Lange
Rick Lange
Tenant Advisor - Austin

A Houston native, Rick made his way to Austin, as many do, by way of the University of Texas. After receiving his degree from the McCombs School of Business, Rick decided to make Austin his permanent home, joining in on Austin’s growth and taking advantage of the many great opportunities that the city has to offer. In his time as a student, Rick served as an intern for the HPI Tenant Advisors team, paving his way to becoming a full-time member of the HPITA team after graduating in the Spring of 2021. 

Currently a member of the CBA and Texas Exes, Rick is actively involved in the commercial real estate and business communities both in and out of the office. In his free time, Rick loves spending time outdoors, whether that be hunting, fishing, golfing, or at DKR cheering on his Longhorns.

rlange@hpitx.com
512-538-2092
901 S. Mopac Expwy Building III, Suite 220 Austin , Texas 78746
Krista Sakamuri
Krista Sakamuri
Director, Office Leasing - Austin

Krista is responsible for assisting with lease negotiations and asset positioning strategies across HPI’s Austin office portfolio. She also focuses on business development initiatives and providing best-in-class service to existing clientele. Prior to joining HPI in December 2021, Krista was the Director of Business Development at Chicago-based architecture firm, Solomon Cordwell Buenz where she was responsible for developing and executing the firm’s overall strategy for identifying, assessing, and securing new business opportunities in the Chicago office market. She has a proven track record of building long-term relationships, generating leads, and cultivating prospect pipelines. Krista holds a bachelor’s degree in Economics and Finance from the University of Illinois Urbana-Champaign and is a new member of the Commercial Brokers Association of Austin.

ksakamuri@hpitx.com
(512) 835-4455
(512) 538-0095 (Direct)
3700 N Capital of Texas Hwy, Suite 420 Austin , TX 78746