Central Texas Logistics Center

600 Clovis R Barker Rd
San Marcos, Texas 78666

AVAILABLE SF
15,136 AVAILABLE SF
San MarcosSUBMARKET
AustinMARKET
2008YEAR BUILT

Spaces Available (2)

Suite 101
For Lease
Suite 101
For Lease
25,392
Available SF
Office/Warehouse
Space Type
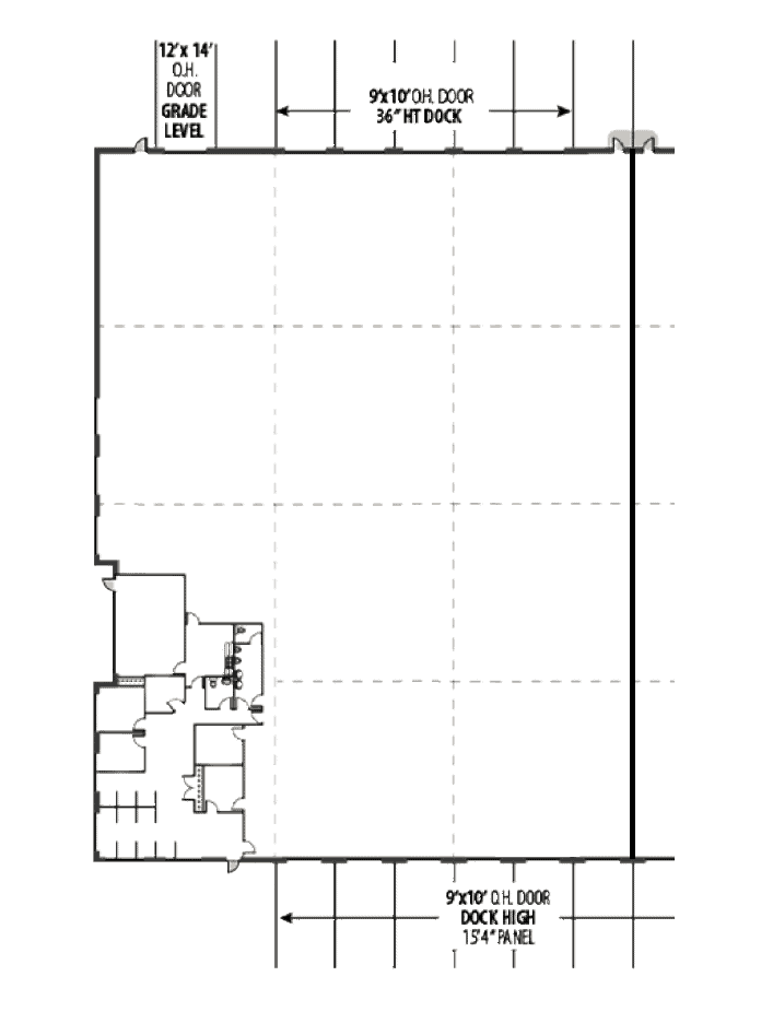
  • 2,100 SF of Office
  • +/- 6 Dock High Doors, +/- 5 Semi Dock High Doors
  • One (1) 14’ X 12’ Grade level, oversized door
  • 24’ Clear Height
  • ESFR Sprinklers
  • 100% Conditioned Warehouse
Suite 202
For Lease
Available Now
Suite 202
For Lease
Available Now
14,850
Available SF
Bulk Warehouse
Space Type
  • 15% Office
  • 4,000 SF Yard
  • 3 Dock High Doors
  • 2 Oversized Grade Doors
  • 24′ Clear Height

Book A Tour

Reach out to one of our experts today!

Davis Bass
Brooks Benkendorfer
Will Thomas
Davis Bass
Davis Bass
Partner - Austin

As a Partner, Davis is directly involved in industrial development, leasing, and acquisitions/dispositions for both institutional and private investment clients. Davis’ specialty is in customer service with a focus on building long-term relationships with his clients. Since 2013, Davis has consistently been recognized as a top CoStar Power Broker, as well as being recognized as the Austin Business Journal’s #1 Heavy Hitter from 2015 to 2024. Prior to joining HPI, Davis attended Trinity University where he earned a B.S. in Finance while spending four years on the Trinity football team.

bass@hpitx.com
(512) 538-1030
901 S. Mopac Expwy Building III, Suite 220 Austin , TX 78746
Brooks Benkendorfer
Brooks Benkendorfer
Industrial Leasing - Austin

A true Austin Original, Brooks was born and raised right here in Austin. After deciding to stick to his roots and attend The University of Texas, Brooks had a very active and involved 4 years at the university. He worked in campus leasing for student housing at Austin City Realty and regularly volunteered and is still active in the Young Life community at Westlake High School. Brooks also proudly served as Handler for the Silver Spurs, where he was a caretaker for Austin’s favorite mascot, Bevo.

Beginning his Junior year, Brooks served as the sole intern for the HPI Tenant Advisors team, learning the ropes from some of the most successful names in the industry. After serving for 2 years as the intern for the HPITA team, Brooks has joined the team full-time to advise and guide companies through their office and industrial facility needs.

In his spare time, Brooks spends as much time outdoors as he can. His favorite outdoor activities include (but are certainly not limited to) fly fishing, hunting, and rock climbing.

brooksb@hpitx.com
(512) 848-2582
3700 N Capital of Texas Hwy, Suite 420 Austin , TX 78746
Will Thomas
Will Thomas
Industrial Leasing - Austin

Will, a Dallas native, moved to Austin to attend the University of Texas. During his time at the University of Texas, Will was an active member of several on campus organizations including the University of Texas Real Estate Society. After his time at the University of Texas, Will decided to stay in Austin and pursue a career in real estate. When he is not working, he enjoys spending time outside fishing, hunting, climbing and cooking for friends. He is a member of the Texas Exes and a National Outdoor Leadership School Alumni.

wthomas@hpitx.com
(512) 835-4455
3700 N Capital of Texas Hwy, Suite 420 Austin , TX 78746